


141 500 ₽/м²
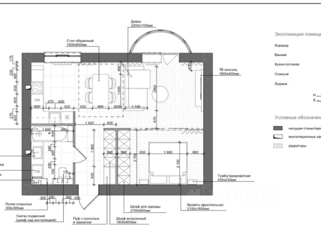
В продаже квартира площадью 40.39 кв. м с черновой отделкой. Квартира находится в жилом комплексе "Юность", на 7 этаже 15 этажного дома. Застройщик - ГК "Развитие". ЖК "Юность" - это концепция дома для жизни и отдыха. Яркий и динамичный, смелый и прекрасный как сама юность. "Юность" - жилой комплекс комфорт-класса для тех, кто выбирает жизнь в идеальном балансе между природным окружением и преимуществами современного города. Инфраструктура • Окружение: ЖК в Октябрьском районе Самары, одном из самых комфортных в городе: в шаговой доступности Пляж на спуске Советской Армии и лодочная станция, Дача Головкина - более известная как "Дом со слонами", Загородный парк площадью более 42 га, парк Гагарина и сквер Леснуха; • Транспорт: Рядом остановки общественного транспорта, выезд на Ново-Садовую улицу; • Школы и детсады: В шаговой доступности - школа, детский сад; • Магазины и услуги: В округе находятся крупные супермаркеты, торговые центры, аптеки, фитнес клубы, спортивный комплекс "МТЛ-Арена" и Академия гимнастики, прочие бытовые объекты; • Парковки и дворы: Запланированы гостевые стоянки и единое благоустроенное пространство двора - зоны отдыха, детские и спортивные площадки. Преимущества • Прочность и долговечность: Кирпичная кладка способна служить 100-150 лет, устойчива к климатическим нагрузкам; • Комфортное проживание: Толстые стены и продуманные перегородки обеспечивают тишину и тепло, без студий - продуманные планировки с оптимальным соотношением жилой и общей зон; • Безбарьерный доступ: Лифты с нулевой отметкой у входа - удобно для колясок и людей с ограниченными возможностями; • Автономное обеспечение: Своя котельная гарантирует стабильное отопление и горячую воду; • Финансовая надёжность: Объект аккредитован крупнейшими банками, возможны ипотека, маткапитал, рассрочка, трейдин; • Экологичность и комфорт: Район удалён от шумных магистралей, рядом лес и зелёные зоны - удобные для прогулок и отдыха.

































































































