Первичная продажа
сдача ГК: 3 кв. 2027 года
Алабинская
14 минут пешком
17 273 565 ₽
183 761 ₽/м²
Номер объекта: 113831
Менеджер объекта: Бурков Василий
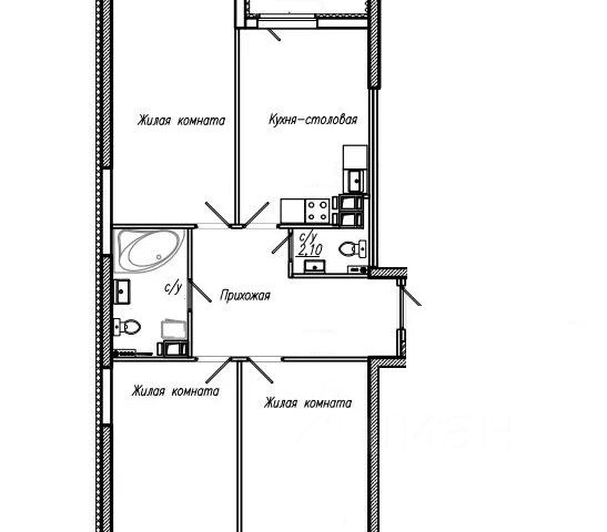
Продается 3-х комнатная квартира в ЖК "И-ВОЛГА", строится в историческом центре города, недалеко от набережной реки Волги.
-В ЖК предусмотрен двухуровневый подземный паркинг.
-Количество квартир: всего 80.
-Подъезд оборудован двумя лифтами:1 грузовой, 1 пассажирский.
-Высококачественный фасад оснащён специальными корзинами для установки кондиционеров, имеется возможность выбора варианта остекления балконов и лоджий, а также предусмотрена декоративная подсветка фасадов, подчеркивающая красоту архитектуры.
-Квартира имеет продуманную функциональную планировку.
-Наличие большого количества естественного света благодаря размещению окон на две стороны.
-В квартире предусмотрены две лоджии.
Заключается ДДУ по 214-ФЗ.
Проектная декларация опубликована на сайте наш.дом.рф









































































