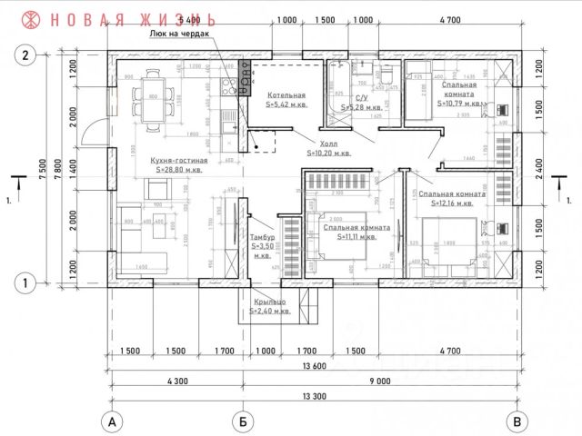
Продается просторный дом общей площадью 126 кв.м на земельном участке 9 соток. Расположен в коттеджном посёлке Рубежный, СДТ Надежда. Дом построен из газоблока D350 толщиной 300 мм! Фундамент свайно-ростверковый с заглублением свай на 3 метра! Высота потолков в черновом варианте 3,4 метра! Пробурена скважина до глубины 26 метров (2-ой водоносный слой), сделан септик (2 колодца по 4 кольца), подключена электроэнергия 220/380V 15 кВт, крыша сделана из мягкой кровли, чердачное перекрытие утеплено минватой 200 мм! Просторна кухня-гостиная 29,9 кв.м, мастер спальня 21,4 кв.м + санузел 7.8 кв.м, детская комната 15,4 кв.м, спальня 15,9 кв.м + гардеробная 8,1 кв.м, просторный холл 18,3 кв.м, санузел 4.3 кв.м, котельная 3,7 кв.м. В посёлке развита инфраструктура: множество магазинов, Магнит, Пятерочка, ресторан, школы, детский сад. Дом оформлен, документы к сделке готовы!






















































































