Мы используем куки-файлы. Соглашение об использовании
Помещение свободного назначения, 170 м²

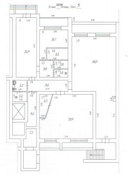
Продается помещение свободного назначения, 170 м²

Площадь170 м²
Этаж1 из 11
Отчёт о привлекательности объектаУзнайте, насколько помещение и район подходят для вашего бизнеса
Что входит в отчёт
  • Охват населения
  • Пешеходный трафик
  • Автомобильный трафик
  • Средний бюджет семьи по району
  • Арендные ставки рядом
  • Точки притяжения
  • Конкуренты в радиусе 1 км
  • Рекомендации по выбору места для бизнеса
Продается помещение свободного назначения 170 кв. м. Помещение имеет 2 отдельных входа, один вход с центральной улицы, второй вход со двора, окна пластиковые стеклопакеты+ решетки, 4 кондиционера, 4 мокрых точки, охранная сигнализация, видеонаблюдение. Парковка для автомобилей перед центральным входом, огромный пешеходный и автомобильный трафик в окружении новые ЖК + строятся новые, колледж, университет, школы и детские сады, в шаговой доступности крупный ТЦ. Помещение светлое, теплое с ремонтом не требующего вложения.
lock

Войдите или зарегистрируйтесь
для просмотра информации

Просматривайте условия сделки и всю информацию об объекте
Сохраняйте фильтры в поиске и не вводите заново
Доступ к избранному с любого устройства
Неограниченное добавление в избранное
Позвоните автору
Вам ответят на все вопросы
Остались вопросы по объявлению?
Позвоните владельцу объявления и уточните необходимую информацию.
  • Инфраструктура
  • Похожие рядом
  • Тип зданияЖилой дом
  • Общая площадь170 м²
Естественная вентиляция
Местное кондиционирование
Центральное отопление
Помощь надёжных риелторов
Риелтор партнёр Циан поможет купить или продать любую недвижимость
СобственникID 128109363
    11 500 000 ₽
    154 786 $
    129 872
    Цена за метр
    67 648 ₽
    Налог
    УСН
    СобственникID 128109363