Мы используем куки-файлы. Соглашение об использовании

Продается 3-комн. квартира, 93,7 м²

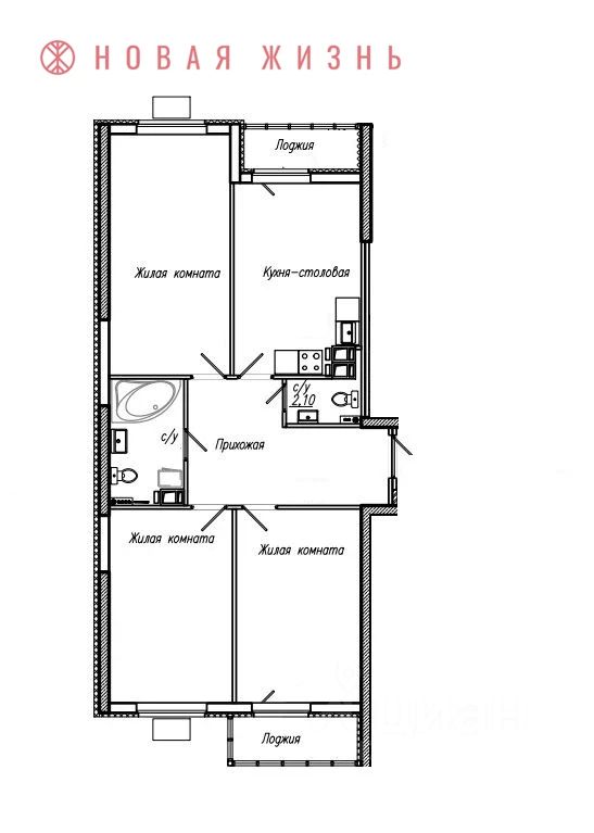
Общая площадь93,7 м²
Жилая площадь50,4 м²
Площадь кухни15,5 м²
Этаж12 из 19
Год сдачи2027
ДомНе сдан
ОтделкаЧерновая
Номер объекта: 113828 Менеджер объекта: Бурков Василий Продается 3-х комнатная квартира в ЖК "И-ВОЛГА", строится в историческом центре города, недалеко от набережной реки Волги. -В ЖК предусмотрен двухуровневый подземный паркинг. -Количество квартир: всего 80. -Подъезд оборудован двумя лифтами:1 грузовой, 1 пассажирский. -Высококачественный фасад оснащён специальными корзинами для установки кондиционеров, имеется возможность выбора варианта остекления балконов и лоджий, а также предусмотрена декоративная подсветка фасадов, подчеркивающая красоту архитектуры. -Квартира имеет продуманную функциональную планировку. -Наличие большого количества естественного света благодаря размещению окон на две стороны. -В квартире предусмотрены две лоджии. Заключается ДДУ по 214-ФЗ. Проектная декларация опубликована на сайте наш.дом.рф
Позвоните автору
Вам ответят на все вопросы

О квартире

Тип жилья

Новостройка

Общая площадь

93,7 м²

Жилая площадь

50,4 м²

Площадь кухни

15,5 м²

Высота потолков

2,7 м

Балкон/лоджия

2 лоджии

Отделка

Черновая

О доме

Тип дома

Монолитно-кирпичный

Пандус

Есть

Расположение

Ипотечный калькулятор
  • Базовая
  • Семейная
  • ИТ-ипотека
  • 20%
  • 30%
  • 40%
  • 50%
лет
  • 10 лет
  • 20 лет
  • 30 лет
Загружаем предложения от застройщика и банков
Помощь риелтора
Проверенный риелтор поможет купить или продать квартиру
Агентство недвижимости
Новая Жизнь
  • 2 года на Циане
  • 129 объявлений
  • 17 227 610 ₽
    Цена за метр
    183 859 ₽/м²
    Условия сделки
    долевое участие (214-ФЗ)
    Агентство недвижимости
    Новая Жизнь