Мы используем куки-файлы. Соглашение об использовании

Продается 2-комн. квартира, 65,7 м²

Общая площадь65,7 м²
Жилая площадь36 м²
Площадь кухни13,9 м²
Этаж5 из 25
Год постройки2025
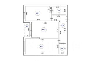
Продаётся квартира от юридического лица площадью 65,7 кв.м. без учета площади лоджии. Площадь квартиры вместе с лоджией 68,7 кв.м. Квартира на 5-ом этаже монолитного дома новой постройки (2025 год) ЖК Унисон. Адрес объекта: улица Советской Армии, 91 / Кабельный переулок, 6. Здание граничит с зоной отдыха - парком Дружба. Площадь квартиры без учета площади лоджии - 65,9 кв. м. Площадь квартиры с учетом площади лоджии 68,7 кв.м. - Две комнаты 19,5 и 16,5 кв.м., - Кухня 13,9 кв.м., - Совмещенный с ванной санузел 4,6 кв.м., - Прихожая 8,8 кв.м. - Кладовая 2,6 кв.м. - Лоджия 2,8 кв.м. В доме находится подземный двух - уровневый паркинг. Три скоростных бесшумных лифта: два пассажирских и один грузовой. Квартира без предварительного ремонта. Никто не зарегистрирован. Квартира без обременений. Возможна покупка в ипотеку.
Позвоните автору
Вам ответят на все вопросы

О квартире

Тип жилья

Вторичка

Общая площадь

65,7 м²

Жилая площадь

36 м²

Площадь кухни

13,9 м²

Высота потолков

2,6 м

Санузел

1 совмещенный

Балкон/лоджия

1 лоджия

Вид из окон

Во двор

Ремонт

Без ремонта

Перепланировка

Не было

О доме

Год постройки

2025

Количество лифтов

2 пассажирских, 1 грузовой

Тип перекрытий

Нет информации

О подъезде

Есть консьерж

Парковка

Подземная

Отопление

Нет информации

Аварийность

Нет

Юридические особенности

Несовершеннолетние собственники

Нет

Материнский капитал при покупке

Не использовался

Доступная среда

Вход в подъезд без порога
Спросите умного помощника
Получите экспертное мнение о жилье

Расположение

Ипотечный калькулятор
  • Базовая
  • Семейная
  • ИТ-ипотека
  • 20%
  • 30%
  • 40%
  • 50%
лет
  • 10 лет
  • 20 лет
  • 30 лет
Загружаем предложения от застройщика и банков
Помощь риелтора
Проверенный риелтор поможет купить или продать квартиру
Автор объявления
ID 12926705
  • Документы проверены
  • 9 лет 1 месяц на Циане
  • 8 450 000 ₽
    Цена за метр
    128 615 ₽/м²
    Условия сделки
    свободная продажа
    Ипотека
    возможна
    Автор объявления
    ID 12926705
    Документы проверены