Мы используем куки-файлы. Соглашение об использовании

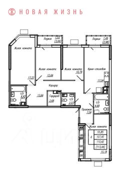
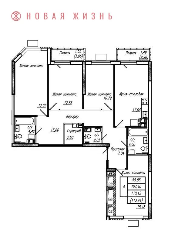
Продается 4-комн. квартира, 113,2 м²

Общая площадь113,2 м²
Жилая площадь55,6 м²
Площадь кухни17 м²
Этаж15 из 19
Год сдачи2027
ДомНе сдан
ОтделкаЧерновая
Номер объекта: 113822 Менеджер объекта: Бурков Василий Цена со скидкой актуальна при 100 % оплате. Продается 4-х комнатная квартира в ЖК "И-ВОЛГА", строится в историческом центре города, недалеко от набережной реки Волги. -В ЖК предусмотрен двухуровневый подземный паркинг. -Количество квартир: всего 80. -Подъезд оборудован двумя лифтами:1 грузовой, 1 пассажирский. -Высококачественный фасад оснащён специальными корзинами для установки кондиционеров, имеется возможность выбора варианта остекления балконов и лоджий, а также предусмотрена декоративная подсветка фасадов, подчеркивающая красоту архитектуры. -Квартира имеет продуманную функциональную планировку. -Наличие большого количества естественного света благодаря размещению окон на две стороны. -В квартире предусмотрены две лоджии. Заключается ДДУ по 214-ФЗ. Проектная декларация опубликована на сайте наш.дом.рф

О квартире

Тип жилья

Новостройка

Общая площадь

113,2 м²

Жилая площадь

55,6 м²

Площадь кухни

17 м²

Высота потолков

2,7 м

Отделка

Черновая

О доме

Тип дома

Монолитно-кирпичный

Пандус

Есть

Понравилась квартира — узнайте о ней больше

Застройщик ответит на все вопросы

Варианты отделки в ЖК

  • Черновая
Похоже на то, что вы ищете?

Акции в ЖК «И-ВОЛГА»

Узнайте про персональные условия и дополнительные скидки при покупке квартиры у застройщика
Ипотечный калькулятор
  • Базовая
  • Семейная
  • ИТ-ипотека
  • 20%
  • 30%
  • 40%
  • 50%
лет
  • 10 лет
  • 20 лет
  • 30 лет
Загружаем предложения от застройщика и банков

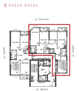
Расположение

Корпус проверен наш.дом.рф
Обновлено 13 апреля 2026
  • Нет в реестре проблемных объектов
  • Застройщик не банкрот
  • Есть эскроу счёт
  • Актуальные фото стройки

Ещё квартиры в жилом комплексе

8 квартир в продаже · Сдача в 3 кв. 2027
Агентство недвижимости
Новая Жизнь
  • 2 года на Циане
  • 20 404 748 ₽
    Цена за метр
    180 254 ₽/м²
    Условия сделки
    долевое участие (214-ФЗ)
    Агентство недвижимости
    Новая Жизнь