Мы используем куки-файлы. Соглашение об использовании
С мебелью
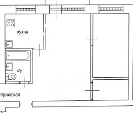
Общая площадь42,7 м²
Жилая площадь29 м²
Площадь кухни7 м²
Этаж3 из 5
Год постройки1969
Двухкомнатная квартира в хорошей локации рядом с Пугачевским трактом! Идеально подойдет семье из 2-3 человек косметический ремонт - можно заехать и жить Общая площадь - 42,7 кв.м кухня - 7 кв.м Застекленный балкон, есть кладовка для вещей Транспорт и инфраструктура 1. остановки общественного транспорта - 3 минуты пешком 2. до центра 20 минут на автомобиле 3.школа 105, 74, 129, 24 и детские садики 3, 261 - в шаговой доступности 4.рядом магазины Пятерочка и Магнит ВАЖНО: объект проверен -юридическая чистота 1 взрослый собственник без обременений и долгов квартира не в залоге, не под арестом, можем показать выписку ЕГРН Условия покупки: - Примем вашу недвижимость в зачет оплаты (обмен с доплатой/без) - Работаем с ипотекой всех банков - одобрение от 8,9% годовых - Принимаем материнский капитал - Профессиональное юридическое сопровождение включено - Помощь в оформлении документов, регистрации в МФЦ показы ежедневно, включая выходные ЗВОНИТ Е- отвечаю быстро, покажу в день обращения.
Позвоните автору
Вам ответят на все вопросы

О квартире

Тип жилья

Вторичка

Общая площадь

42,7 м²

Жилая площадь

29 м²

Площадь кухни

7 м²

Санузел

1 совмещенный

Балкон/лоджия

1 балкон

Вид из окон

Во двор

Ремонт

Косметический

Перепланировка

Не было

Продаётся с мебелью

Да

О доме

Год постройки

1969

Тип дома

Блочный

Тип перекрытий

Железобетонные

Подъезды

4

Парковка

Наземная

Отопление

Центральное

Аварийность

Нет

Газоснабжение

Центральное

Юридические особенности

Несовершеннолетние собственники

Нет

Материнский капитал при покупке

Не использовался

Доступная среда

Вход в подъезд без порога
Вход в квартиру без порога
Спросите умного помощника
Получите экспертное мнение о жилье

Расположение

Ипотечный калькулятор
  • Базовая
  • Семейная
  • ИТ-ипотека
  • 20%
  • 30%
  • 40%
  • 50%
лет
  • 10 лет
  • 20 лет
  • 30 лет
Загружаем предложения от застройщика и банков
Помощь риелтора
Проверенный риелтор поможет купить или продать квартиру
4 490 000 ₽
Цена за метр
105 152 ₽/м²
Условия сделки
свободная продажа
Ипотека
возможна
Агентство недвижимости
Риелтор
Суперагент