Мы используем куки-файлы. Соглашение об использовании

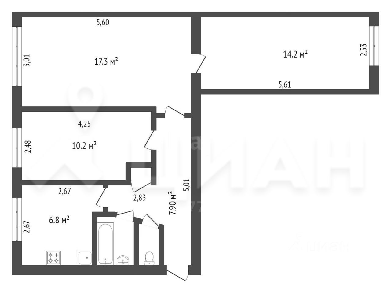
Продается 3-комн. квартира, 61,7 м²

Общая площадь61,7 м²
Жилая площадь46 м²
Площадь кухни6,5 м²
Этаж4 из 5
Номер объекта: 568541. Квартира-трансформер для семьи с ребенком. Удачная планировка на разные стороны дома!!! Комната родителей 17 метров. Комната ребенка 14 метров Гостиная 15 метров. Средний этаж, тихий спокойный район, далеко от заводов. Дома вы действительно будете отдыхать)) Кухня 6,5 метров - достаточно места для семьи. Окна заменены, санузел с выводами под стиральную машинку, и водонагреватель. Застекленный балкон, с организованными местами хранения. Квартиру можно трансформировать как вам удобно, есть несколько вариантов использования помещения: с маленьким ребенком и ребенком постарше. До школы 700 метров пешком, до детского сада 250 метров. Остановка общественного транспорта в 250 метрах от дома: автобусы 1, 17, 16, 10. Удобно доехать в любую точку города. Во дворе в прошлом году сделали ремонт дорожного покрытия и расширили парковку. Один взрослый собственник. Подходит ипотека и материнский капитал.
Позвоните автору
Вам ответят на все вопросы

О квартире

Тип жилья

Вторичка

Общая площадь

61,7 м²

Жилая площадь

46 м²

Площадь кухни

6,5 м²

Санузел

1 совмещенный

Балкон/лоджия

1 лоджия

Вид из окон

На улицу и двор

Ремонт

Косметический

О доме

Год постройки

1970

Строительная серия

1-439А-6

Тип дома

Блочный

Тип перекрытий

Железобетонные

Подъезды

6

Отопление

Центральное

Аварийность

Нет

Газоснабжение

Центральное

Спросите умного помощника
Получите экспертное мнение о жилье
Планировка этой квартирыПо данным Циан
Планировка этой квартиры по данным Циан

Расположение

Ипотечный калькулятор
  • Базовая
  • Семейная
  • ИТ-ипотека
  • 20%
  • 30%
  • 40%
  • 50%
лет
  • 10 лет
  • 20 лет
  • 30 лет
Загружаем предложения от застройщика и банков
Зимой будет очень тепло
Дома такой же серии обычно очень хорошо сохраняют тепло
10
Помощь риелтора
Проверенный риелтор поможет купить или продать квартиру
3 090 000 ₽
Цена за метр
50 081 ₽/м²
Условия сделки
свободная продажа
Ипотека
возможна
Агентство недвижимости
Суперагент
На Циан
13 лет
Объектов в работе
79