Мы используем куки-файлы. Соглашение об использовании
Только на Циан
Площадь дома158,2 м²
Участок10 сот.
Этажей в доме2
Год постройки2022
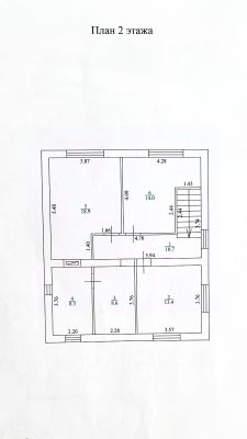
Продается ДВУХЭТАЖНЫЙ КОТТЕДЖ в 10 мин. от города Самара! Общей площадью 158.2 кв.м., имеет 2-А ПОЛНОЦЕННЫХ ЭТАЖА. Дом 2022 года постройки. В дом заведены: свет, газ, вода с колодца на 10 колец, сделана сливная яма. СТРОИЛИ ДЛЯ СЕБЯ! Очень ПРОДУМАННАЯ ПЛАНИРОВКА, имеющая все необходимое для комфортной жизни: 2-а входа на разные стороны, 2 с/у расположены на каждом этаже, большая гардеробная. - 1 этаж: большая кухня-гостинная 45 кв.м., с/у с котельной зоной, спальня 14.5 кв.м. - 2 этаж: 3 изолированные спальни 13.4/14/19 кв.м., вместительная гардеробная, с/у. Частичная предчистовая отделка: Окна ПВХ, разводка электроэнергии и штукатурка на 1 этаже, двухконтурный подвесной котел. ШИРОКИЙ участок РОВНОЙ прямоугольной формы 1000 кв.м. На участке расположен железный перевозной гараж. Асфальтовая дорога вдоль участка. Соседи все хорошие, дружные, на улице в основном коттеджи. Дом расположен центре села. Остановка общественного транспорта за домом в 3 мин.ходьбы. Хорошее расположение села: ЭКОЛОГИЧЕСКИ ЧИСТОЕ место вблизи города (10 мин. от пл. Кирова). В селе имеется магазин Пятерочка, большая школа и дет.сад, современная дет.площадка. Множество небольших магазинов и услуг. ПОЛНАЯ ЦЕНА в договоре. Документы имеются на все. Участок размежеван. Ипотека, сертификаты - ДА. ЗВОНИТЕ!
Позвоните автору
Вам ответят на все вопросы

О доме

Площадь

158,2 м²

Количество этажей

2

Год постройки

2022

Об участке

Площадь

10 сот.

Категория земель

Земли населённых пунктов

Статус участка

Личное подсобное хозяйство

Коммуникации и удобства

Канализация

Есть

Водоснабжение

Колодец

Электричество

Есть

Газ

Есть

Дополнительно

Гараж

Спросите умного помощника
Получите экспертное мнение о жилье

Расположение

Подпишитесь на объявления в этой локации
Мы сообщим, как только поблизости появится что‑нибудь новенькое
Ипотечный калькулятор
  • Базовая
  • Семейная
  • ИТ-ипотека
  • 20%
  • 30%
  • 40%
  • 50%
лет
  • 10 лет
  • 20 лет
  • 30 лет
Загружаем предложения от застройщика и банков
Хотите продать недвижимость?Разместите объявление на ЦианРазместить
7 700 000 ₽
Цена за метр
48 673 ₽/м²
Ипотека
возможна
Агентство недвижимости
Документы проверены
На Циан
9 лет
Объектов в работе
16