Первичная продажа



сдача ГК: 4 кв. 2028 года
Российская
6 минут на транспорте
21 515 500 ₽
185 000 ₽/м²
жилой квартал МАТРИЦА
Первый проект комплексного развития территорий в г. Самара на 4,8 га
Архитектура:
Концептуальный стиль с навесными фасадными решениями из керамогранита, аквапанелей и кассет из алюминиевого композита
Широкоформатное остекление
Дизайнерская подсветка фасадов
Социальный кластер:
Новая школа на 300 мест
Десткий сад на 155 мест
Поликлинника на 100 посещений в сутки
Инфраструктура:
Собственный парк с плейхабами
Закрытый двор без машин
Двухуровневый подземный паркинг с доступом к квартире и электроазарядками
Келлеры
Уникальные планировочные решения:
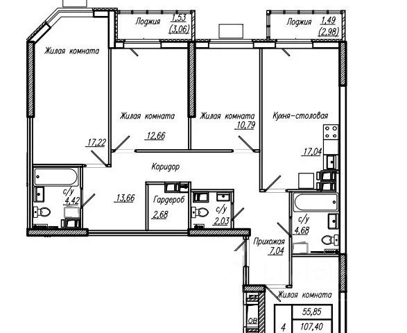
Квартиры с террасами и видом на Волгу
Двухуровневые квартиры с видом на Волгу
Квартиры с террасами на первых этажах во двор
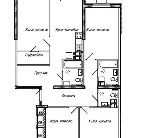
Кухни-гостинные, мастер-спальни с гардеробными
Более 40 вариантов планировок Купить 4-комнатную квартиру в новостройке с большой кухней в Самарской области.







































































