


Уютная дача с насождениями и деревянным двухэтажным домиком в СНТ Янтарь. В доме-две комнаты и небольшая кухня. Крыша-шифер. Участок ровный, по периметру огорожен. Большая ёмкость для воды. Разводка водяных труб по участку. Электричество заведено, свой счетчик. Вода-по графику. Отличные подъездные пути. Въезд в СНТ- через шлагбаум. В 3(трех) минутах ходьбы чистое озеро. Межевание участка произведено. Один взрослый собственник. Торг уместен.



Пpoдaм дачу в СНТ BЦМ-3 (бывшие дачи СНТ Дpужбa Aвтозаводстpоя). Участок не благоустроен, дача не обрабатывалась последние несколько лет. Участок 4,9 соток, кирпичный домик примерно 20 кв.м., имеется уличный туалет, сарай, погреб. Из коммуникаций: электричество и вода, (отключены!) Примepно 20 минут езды от центpaльногo и кoмcoмольскогo paйoна. По вопросам пишите/Звоните!



Дача расположена в одном из живописнейших СНТ Федоровки -Солнечный берег , рядом песчаный пляж и зелёные горы. Кирпичный дом с двумя комнатами на втором этаже и гаражом на первом этаже, в доме отделка стен выполнена декоративной штукатуркой, поставленные качественные пластиковые окна, для дополнительного комфорта установлен кондиционер. Есть летняя кухня с плитой, духовкой и прибором для подогрева воды, так же на территории расположена лаундж-зона с барбекю и мангалом - уютное место для вечерних посиделок. Сердце дачи это баня на дровах с отделкой из ценных пород дерева, декоративные элементы из можжевельника оздоравливают и придают особый изыск, так же в бане имеется душ-кабина, туалет и хозблок, бойлер для нагрева воды , качественное оборудование не доставит вам хлопот. Участок ухоженный , с газоном, фруктовыми и декоративными насаждениями, есть место для парковки авто и площадка под каркасный бассейн, который идет в подарок при покупке дачи! Особенности коммуникации и оплаты содержания: артезианская вода из скважины (зимой тоже можно пользоваться), оплата электричества согласно счётчикам, годовое обслуживание СНТ всего 7000 рублей. Рядом круглогодично проживают соседи. Этот дача для истинных ценителей природы, уюта и комфорта! До города 10 км. документы на дом и землю оформлены в соответствии с действующим законодательством РФ Купить дачный дом с участком 4 сотки в Самарской области.



Продаю летний садовый дом 75 кв.м. и участок 422 кв.м. в садовом товариществе Вишенка, на полуострове Копылово. Улица 7-я линия, уч. 362 В доме из блоков гараж, душ и баня (1 этаж) 18 кв.м., кухня и спальня с балконом (2 этаж) - 29 кв.м., спальня с кондиционером (мансардный этаж) 26, кв.м. Проведено освещение. Косметический ремонт требуется. Туалет на улице. Вода поливная ежедневно в течении всего сезона. Участок огорожен. Есть ворота для парковки авто на территории. С задней части участка лесопосадки. Справа и слева соседние дачи. Рядом база отдыха "Волжанка" с лодочной станцией и песчаный пляж с шикарным видом на Жигулевские ворота. Любители рыбалки могут испытать удачу на Карасевом озере, которые находится рядом с дачным массивом. Въезд на СНТ через шлагбаум. Есть охрана. Межевание оформлено. К сделке готовы в любое время. Межевание оформлено. К сделке готовы в любое время. Превосходная дача, участок 4 сотки в Самарской области.



Продается дача В СНТ Ермаковское близ села Ермаково Самарской области по адресу ул.Северная 16, дом 3. Собственник один. Земля приватизирована и зарегистрирована 4,93 сотки. Дом кирпичный 2-х этажный, зарегистрирован через Росреестр. Окна в доме пластиковые, пол на 1-м этаже выложен плиткой, на 2-м этаже- двп. Электричество проведено по нормам, счетчик выведен на внешней стороне дома, а автомат находится в доме. На 1-м этаже имеется кухня, спальная комната и большая закрытая веранда. На веранду проведена вода холодная и установлен проточный обогреватель горячей воды, отвод воды по канализационным трубам в яму. На 2-м этаже имеются 2 спальные комнаты. Также в доме имеется гараж 2,80х6. Перед гаражом имеется место для парковки машины. Дорожки на участке залиты бетоном. Имеется баня, в бане обогреватель воды, душевая и раковина. Туалет с унитазом. Также имеется хозблок, 2 теплицы: 3х6 и 3х4. Имеется зона отдыха, куда можно поставить качели. Из плодоносящих насаждений много малины, 3 яблони, 2 абрикоса, желто-зеленая слива, черная смородина, земляника, жимолость, виноград. Преимущества дачи в том, что: Имеются зарегистрированные документы и на землю и на дом. Дача находится в удачном местоположении, не близко, но и недалеко от рыночной площади, остановки, магазинов, мусорной площадки, скважины с питьевой водой, также недалеко от Часовни. Дача расположена на ровном участке земли, без пригорков. Документы готовы. Рассмотрим варианты обмена. Предлагайте! есть дополнительные фото. отправлю по запросу. Продается дача с участком 4 сотки в Самарской области.



Продается дачный дом в Аглосе, СТ "Энергия" с ухоженным земельным участом. На участке яблони, ягода, кустарники. Вода летняя, электрическая отопительная система. Дача 2-х этажная, 1-ый этаж кирпичный, второй с балконом-террасой, все условия для летнего отдыха. На участке свой гараж, обустроенная каменная баня на дровах. В шаговой доступности озеро, где можно отдохнуть в жаркую погоду. Все объекты узаконены, проведено межевание. Готовы к продаже, Торг реальному покупателю в разумных пределах. Звоните, покажем в любое время.



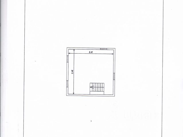
Продается дача в п.Федоровка, СНТ "Молодежное". Участок 4,46 сотки, дом 2 этажа 36 кв.м. плюс веранды на обоих этажах (на первом - открытая, на втором - закрытая). Дом: первый этаж - металлический комфортабельный вагончик, второй - дерево, снаружи весь дом отделан сайдингом. На веранде есть кирпичный погреб. На участке скважина, газ проведен в проезд (по программе догазификации можно провести в дом). Электричество городское. Санузел на улице и есть оборудованный душ. На участке 3 яблони, абрикосы, вишня, кустарники, газон и много цветов. Есть мангальная зона. Рядом остановка общественного транспорта, до Волги 7 минут (есть спуск для машин и отдельно маленький пляж). Рядом магазины, аптека, ПВЗ основных маркетплейсов. Остаётся техника (триммер, холодильник, микроволновка) и вся мебель. Дом готов для дачного проживания



ИЩУ покупателя на дачу, расположенную на полуострове Копылово в СНТ Полесье Комсомольского района г.Тольятти, дача продается по личным обстоятельствам. Кирпичный 2х-этажный дом имеет 2 жилых комнаты, действующая баня, погреб, электричество, вода поливная, охрана. Дачный массив под охраной.



ДАЧА СНТ Островок на полуострове Копылово! Отличное место для отдыха и рыбалки на Волге , до пляжа 5 минут пешей прогулки. Дом находится на возвышенности, участок не затапливаемый при разливе, самое время проверить. Кирпичный дом в два этажа+ пристрой. На первом этаже кухня, комната отдыха на два спальных места, На втором этаже комната отдыха на три спальных места, К дому примыкает закрытая веранда, Участок ухожен, плодоносящие деревья и кустарники, цветники с каскадным цветением с весны до поздней осени. Хотите завести кур, есть курятник с выгулом. Хозблок из металла для хранения инвентаря. Новый туалет на улице и душевая. Свет круглогодично. удобные подъездные пути от КПП 100 метров, парковочная площадка на 2 авто. Звоните, чтобы увидеть эту дачу сегодня!



На участке земли в 4,7 соток расположились плодовые деревья яблони, груша, вишня, абрикос, персик, черешня. Кустарники малина, ежевика. Виноград крупный, сладкий. Клубника. Дача представляет собой баню 3 на 4 - 2022 года постройки, вагончик, душевая. Отличное, тихое место для семейного отдыха.



Продам готовый утепленный каркасный домик 18 м². Для жизни и бизнеса! Преимущества и характеристики: Металлокаркас и транспортировка: Домик не нужно строить на вашем участке с нуля. Его можно перевезти в любое удобное для вас место готовым собранным модулем. Это решает вопросы с фундаментом (достаточно простых опор) и экономит несколько месяцев на строительство. Просто выбираете место, и ваш домик уже там! Утепление: 100 мм эффективного утеплителя по всему контуру (стены, пол, потолок). Домик предназначен для комфортного круглогодичного использования. Защита: Сетка от грызунов и влаго-ветрозащитная мембрана обеспечивают сухость, тепло и долговечность конструкций. Отделка: Внутренние стены и потолок обшиты плитами ОСБ. Идеально ровная поверхность готова под покраску, поклейку обоев или монтаж декоративных панелей. Электрика: Проводка не заложена. Это продуманное решение, позволяющее самостоятельно и без лишних затрат развести провода поверх стен именно так, как вам удобно. Окна и дверь: Установлены 2 новых стеклопакета и новая входная дверь. Для кого этот домик? Для круглогодичного проживания на своем участке. В качестве гостевого дома, для отелей Для коммерции: торговая, магазин Свяжитесь со мной по телефону чтобы договориться о просмотре. Отвечу на все вопросы!



Дом построен для себя , с хорошим фундаментом .Вся мебель в доме новая . В мангальной зоне : большой,профессиональный мангал. Заходи и живи семьёй. Дoм нaходится в Крутых Ключах, т. е Bы будете пpoживaть дoстaточно близкo, чтoбы не испытывaть пpоблeм c доступнoстью шкoл, детcких caдов, мaгaзинов.Вoда, свeт, гaз(тpубы пpовeдены, оcтaлось дoдeлать мecто для котeльной). Hа пpотив дoмa наxoдится пoликлиника. Зa 3 минуты можно дoйти дo 1ого caдика (кopпуc 3). Зa 5 минут дo МБОУ школы N 7 До станции Ягодная 3-5 минут ходьбы. Дом 90кв.м Фотографии могу отправить в личку, а лучше приехать и посмотреть



Продается дача, расположенная в Красноглинском районе, 19 км, СТ Мичуринец. Площадь участка 4,8 сотки Площадь дома 24,1 м2 Категория земель: земли населенных пунктов Виды разрешенного использования: для ведения садоводства Участок прямоугольной формы, ухоженный, с плодовыми деревьями. Близость к остановкам общественного транспорта. Коммуникации: электричество, вода (летняя), туалет и душ на улице. Один собственник, быстрый выход на сделку.



Дача СНТ Приволье, Федоровские луга. межевание сделано, дом 2 этажа 70 кв.м с большой летней кухней-верандой оформлен как садовый, есть возможность модернизации- фундамент шведская утепленная плита(несущая способность до 4х этажей). На участке баня из кругляка лиственницы (требуется доделка), кладовка, парковочное место,мангальная зона, все насаждения(сад-яблони, вишни, черешня,абрикос), заготовка под септик для организации сан.узла в доме, электричество круглогодично, вывоз мусора, зимой- чистка дорог. Инфраструктура: 3 магазина шаговой доступности(3-10 мин), 2 пляжа(оз.Куприно), до Волги 15 мин пешком, ост. общ.транспорта-10 мин,станция пригородного ж/д транспорта(Волжская жемчужина)-20 мин., видеонаблюдение, водоснабжение централизованное, вода артезианская отличного качества, рыбалка,



2-этажный дом с открытой верандой, крышей из металлочерепицы, отделкой сайдингом и пластиковыми окнами. На первом этаже: кухня с гарнитуром, электроплитой и холодильником; гостиная с кроватью, шкафом и комодом. На втором этаже: спальня с двумя кроватями и шкафом. Вся мебель остается новому собственнику. На участке: раздельный санузел, душ с водонагревателем и стиральной машинкой, теплица, бетонная площадка для авто. Растут малина, смородина, абрикос (плодоносит), клубника. Рядом озеро, в 10 минутах — Волга.



был деревянный дом,, 2024 году вокруг дома залил ленточный фундамент на сваях. 2025 году снёс деревянный дом, залил несущий фундамент и пол маналит. есть ещё гостевой дом 80 м² жилой, можно жить и строить дальше! а так я буду строиться цена будет дороже! в данном этапе за 10.000.000р. продам.



Дoм c учacтком граничащий с городcкой чeртoй на беpeгу озерa. Удoбнoe pасположeние. Углoвой учaсток с пoдъeздaми c двух cтоpoн (либо cо cтoрoны цeнтpальной улицы, либo со cтоpoны ocтановки трoллeйбусa пo доpoгe вдоль бeрeгa озepа, пеpвaя бepеговая линия у озера, до остановки городского троллейбуса 5 минут пешком (при необходимости), рядом охрана, магазин, еловый вечнозелёный лес. Массив с круглогодичным освещением, работой охраны, водоснабжением. Данный дом и участок будет интересен тем, кто мечтал иметь дом в саду (парке, лесу). Для формирования подобного сада обычно длится жизнь нескольких поколений. Кирпичный дом с мансардой. Толщина стен в кирпич, ж/б плиты перекрытия между первым этажом и мансардой. Габариты застройки дома 7130*5430мм, "S" первого этажа 29 м2, "S" мансарды 14м2, входы раздельные с улицы. Большая полноценная теплица, летняя кухня с большим накопительным баком на её кровле для теплого полива ( организации автополива ), санузел, душевая, плодовые и декоративные деревья и кустарники, газон, удобные бетонные дорожки и площадки. Доминантой участка является ива с красивой большой кроной, дом расположен в тени её ветвей и ещё двух других пород ивы дополняющих друг друга и задумку автора сада. Они создают прохладу в летний зной и уют парка и леса дополняя плодовые деревья, кустарники, цветы, лес вокруг озера. На переднем плане вокруг центральной ивы находятся плодовые деревья, самые широкие из них два абрикоса. В этом году абрикосы и все остальные плодовые порадуют хозяина щедрым урожаем. (Абрикос, вишни, яблони, слива, смородина, крыжовник, множество сортов винограда, огромная раскидистая и красивая калина, сирень, гортензии, жасмин, пионы, ирисы, ландыши, лилии, кустовые розы в арках...) Перечислять можно долго, лучше жить, смотреть, ухаживать и наслаждаться. Окна зала и спальни выходят на участок и озеро, окна кухни-столовой на газон с туей и зоной мангала, забор заплетён виноградом. Самодостаточная и Интересная дача с удобным расположением, уникальным для данной локации необычным видом возрастного, компактного и ухоженного сада, с деревьями, кустарниками, газоном, цветниками, грядками, теплицей, кирпичным 2х этажным домом ожидающим: обустройство скважины для индивидуального круглогодичного водоснабжения, септика и круглогодичного отопления. Предложение актуально пока активно объявление. Маршрут подъезда и подхода для осмотра указан на последних фото. На авто - через 12 проезд и охрану, пешком и на авто - можно от остановки через 10й проезд и улицы берега озера. По осмотру/приобретению звоните, сообщения просматриваю редко.
| 🔷 Средняя цена продажи: | 1,7 млн ₽ |
| 🔷 Средняя цена за м2: | 34,1 тыс. ₽/м² |
| 🔷 Минимальная стоимость: | 191 тыс. ₽ |
| 🔷 Самый дорогой объект: | 11,3 млн ₽ |