Причина продажи не связана с квартирой!
Не бойтесь первого этажа, делали под себя! Ни тараканов, ни грызунов, подвал два раза в году обрабатывается. Не имеется никаких не приятных запахов ни в квартире из подвала, ни в подъезде. Швы дома свежие, нигде ничего не течет. Я старшая по подъезду и за своим подъездом я слежу, все сделано для спокойного и комфортного проживания! Батареи огненные, поэтому и не менялись радиаторы! Знаю каждого соседа, весь подъезд, никогда не происходило никаких происшествий, тихо и спокойно. Так же спокойно и во дворе, потому что не "проездной". В подъезде без страха можно "парковать" и коляску, и велосипед, и другой "транспорт". Приходите и убедитесь сами, никто не кусается. Задавайте все интересующие вопросы!
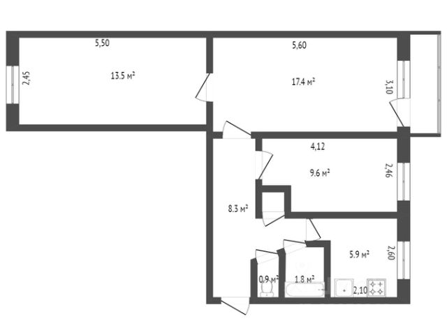
Одна спальня смежная с залом.
Стоимость и мебель - обговаривается.
В 2021 году все полы выравнивались стяжкой+маяки, сверху нивелирной смесью. Стены выравнивались по маякам. Заменена вся проводка, вся сантехника. В щитке подъезда две реле на электричество в квартире + несколько УЗО на комнаты и розетки.
Все окна заменены на пластиковые в 2021 году, снаружи откосы сделаны пластиком.
Обои флизелин, дорогие, качественные.
Потолки везде натяжные, в ванной комнате и туалете электрическая вытяжка.
Входная дверь установлена в 2022 году, добротная, толстая, с зеркалом.
Счетчики на воду, газ, свет. (установлены в 2021 году!), счетчика на отопление нет и оплачивается ежемесячно, квартира очень теплая!
Один собственник!
Весь ремонт был сделан в 2021 году (последние фото).
Имеется подвальное помещение, комната 5-7 квадратных метров с новым замком. Подвал сухой ,чистый, от паразитов регулярно обрабатывается.
Подъезд так же чистый, в 22 году установлен современный домофон фирмы "Гейзер" с новой дверью, окна заменены, новые почтовые ящики и уборка подъезда от УК.
Во дворе детская площадка, три парковочных места прямо перед подъездом и парковочная площадка во дворе. Рядом несколько лесопосадок, парк им. Жукова, два "фок"а, "ДК Горизонт" с кинотеатром\театром.
Развитая инфpacтpуктура: 3 минуты рынок ("пятерочка", "магнит") и аптека, на углу дома школа 4, два детских сада в 5ти минутах ходьбы, в 10ти минутах ходьбы ТЦ "Монгора", в 7ми минутах МФЦ, остановка "Аптека", "ДК Горизонт", "ФОК НАДЕЖДА", пункты выдачи, почта в 7ти минутах от дома.
Просьба, не беспокоить риелторов предложениями!