80 357 ₽/м²
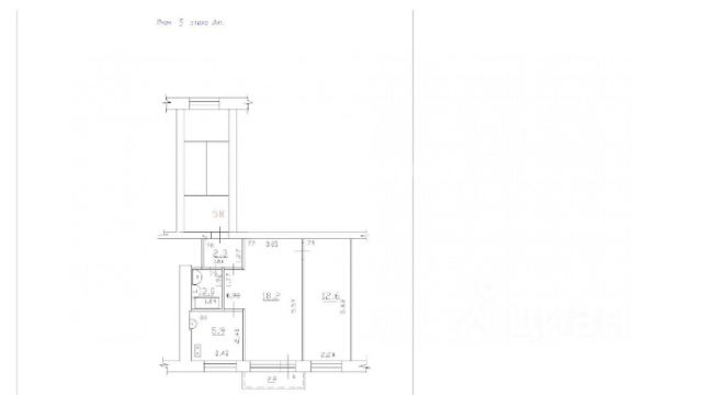
Продажа 3-х комнатной квартиры на ул.Батайская, д.11 в кирпичном доме 1980 г.п. Общая площадь без учета лоджии - 61,6 кв.м. Все комнаты изолированные, сан.узел раздельный. Квартира в нормальном жилом состоянии. Окна пвх, трубы водоснабжения металлопласт, центральное горячее водоснабжение, но есть и электро-водонагреватель. Дом расположен в экологически чистом районе, из окна открывается вид на горнолыжную трассу. Во дворе детский садик и школа. Два взрослых собственника, собственность с 2013 года - любая форма расчетов. Разумный торг обсуждаем после просмотра. Договорённость о показе за сутки.







































































