140 000 ₽/м²
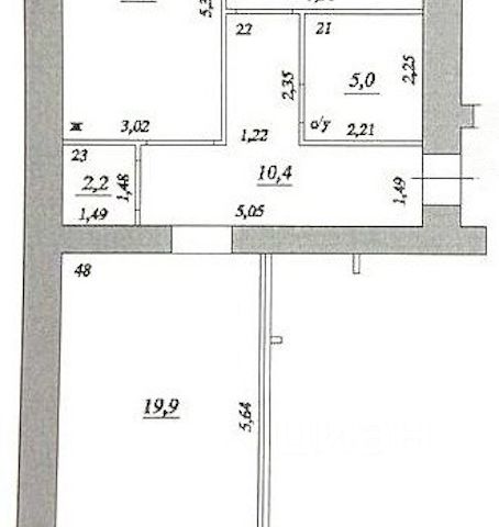
Номер объекта: 96074 Менеджер объекта: Шерер Сергей Семейная ипотека под 6% МОРРИС - РЕШЕНИЯ ДЛЯ КОМФОРТНОГО ПРОЖИВАНИЯ. КВАРТИРЫ в ЧЕРНОВОЙ ОТДЕЛКЕ. Географический центр города с низкой плотностью населения, где есть вся необходимая инфраструктура. Своя частная, охраняемая территория для собственников, где можно провести время с семьей. Двор без машин (в подземный паркинг спуск на лифте с этажа). Всего 90 квартир в доме. Премиальное качество отделки мест общего пользования. Вам есть на что посмотреть... Звоните! PS: Продаем через льготные ипотечные программы: "СЕМЕЙНАЯ" и "IT" Дом сдан в 2023 году. Право собственности зарегистрировано. Поможем в одобрении и сопроводим сделку "под ключ" Проектная декларация опубликована на сайте наш.дом.рф Продается 2-комнатная квартира в микрорайоне 6 в городе Самара.





















































































