50 243 ₽/м²
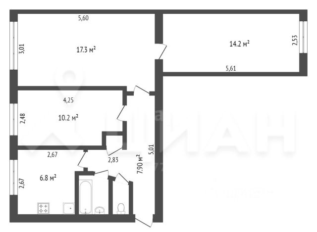
Номер объекта: 567453. Большая квартира для семьи по отличной цене! Две раздельные спальни и большая (17 метров) гостиная. Средний этаж, тихий спокойный район, дом далеко от дороги.. Дома вы действительно будете отдыхать)) Квартира расположена на разные стороны дома. Три комнаты 15,8 метров, 14,3 метра и 17 метров. Достаточно места для спальни родителей, детской и гостиной для общих сборов с семьей. В комнатах удобно расположить спальные места, места для хранения. В детской есть место для игр или занятиями хобби. Кухня 6,5 метров - больше, чем обычно) Хозяйкам удобнее) Окна заменены, санузел в котором умещается стиральная машинка, застекленный балкон, с организованными местами хранения. Квартиру можно трансформировать как вам удобно, есть несколько вариантов использования помещения. В районе - хорошая школа, несколько детских садов, рядом пункты выдачи озон вайлдберриз, почта россии. Магазины так же в шаговой доступности. Удобная транспортная развязка - все начальные точки отправления маршруток - именно на проспекте. Один взрослый собственник. Подходит ипотека и материнский капитал. 3-комнатная квартира с лоджией в Чапаевске.

































































