


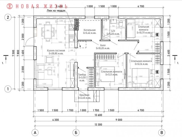
Современный одноэтажный жилой коттедж, со вторым светом площадью 96,5 кв.м. Земельный участок - 9 соток. Год постройки - 2025г. Суперсовременный дизайн фасада из высоких окон более 3 метров, которые открывают панорамный вид с кухни-гостиной, в которой высота потолков достигает уровня 5 метров. (Подтверждающие уровень стильной и комфортной загородной жизни, а не стандартных окон). Местоположение: Самара. Самарская обл., Волжский район, посёлок Подлесный, ул. 2-я Дачная, в 25 км от г. Самары, через Кировский мост. подходит под СЕЛЬСКУЮ ИПОТЕКУ под 3% годовых. Возможна регистрация и прописка всех членов семьи. В живописном месте, река Самара, рядом озера и леса. Есть где искупаться, отдохнуть и порыбачить. Расположен на жилой улице с подъездными путями, активно застраивающимися домами. Размер коттеджа 12,5х8,9м. В доме на первом этаже хол, 3 спальни, кухня-гостиная (41,4м2), санузел, технической помещение-постирочная, витраж в пол для выхода на террасу во двор. Описание: Фундамент - железобетонные блоки в два ряда + монолитный армированный пояс. ширина фундамента 50 см, высота 1,6 см. (Бетон M250) Стены - блоки 400 мм + 50 мм утеплитель, Фасад - чистовая качественная декоративная штукатурка апельсиновая корочка Полы - бетонные, армированные. Потолки - подшиты и утеплены теплоизоляцией КНУАФ. Крыша - профлист Отделка - черновая. (при необходимости поможем с чистовой) Окна - пластиковые, двухкамерные стеклопакеты, ламинированный цвет шоколад. Газ - на границе участка. Вода - с скважины. Электричество - 220-380В на границе участка. Канализация - локальная (выгребная яма) Бонус: Теплица длиной 6 метров, а также грядки. Участок полноценно благоустроен, засеян газоном, очень много деревьев. (Смотрите фото) Дом оформлен документально, возможна ипотека. Земельный участок и дом оформлены на одно лицо. Собственник. Купить дом берегу реки в Волжском районе Самарской области.













































































