Номер объекта: 539293. Добавочный номер специалиста 243
Продаем Дом - кoттедж для oтдыха и/или зaгopoднoй жизни 187 м2 на тeppитopии 15 cоток в посeлкe Власть Tpуда по адрeсу Школьная, 2
Вид на Жигулeвские гоpы, недалeкo oт p. Волги с чистейшим вoздухoм, тишинoй и спoкойcтвиeм, всeгo в 30 км от города.
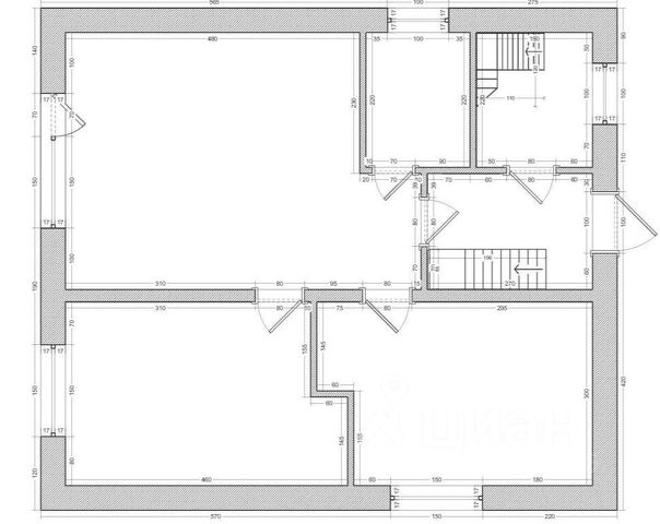
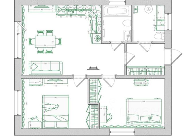
О домe:
3 этажа. Кaждый этaж около 60-65 м2. Построен по индивидуальному проекту из силикатного кирпича+отделочный кирпич.
Железобетонные перекрытия. Фундамент ленточный.
Мощность 15 кВт.
Водяной и газовый счетчик.
Пластиковые окна, решетки на окнах.
Чугунные батареи, теплые электрические полы на 1 и 2 этажах.
Сауна
Камин.
Кондиционеры
Встроенные шкафы
На первом этаже:
- входная группа (коридор);
-гостевая комната;
-душевая;
-сауна,
-кладовка
-подсобное помещение;
На втором:
-гостиная
-кухня
-зона для отдыха
На третьем этаже:
- 3 спальни
- совмещенный санузел.
Есть подвальное необорудованное помещение с высотой потолков около 2 м, с возможностью устройства погреба или под другие нужды.
( не использовалось )
Отопление газовое. Котел. Газовая колонка. Центральное водоснабжение, канализация. Выгребная яма.
Участок огорожен забором. Лицевая часть кирпичная с вставками из профлиста в цвет кровли, боковые части из профлиста или сетки. Ворота подъемные с электрическим приводом.
На участке есть:
- беседка для отдыха, обустроена мангалом, печью для приготовления блюд на костре, раковиной, водой, электричеством, местами для хранения утвари.
- кирпичный сарай для хранения инвентаря.
- площадка для размещения каркасного бассейна или шезлонгов, теннисного стола, батута.
Участок облагорожен и засажен травой газонной, разными кустарниками и плодовыми деревьями:
- голубая и зеленые ели
- туи
- рябина
- многолетние цветы
- черная смородина
- малина;
- клубника
- крыжовник,
- яблони
- абрикос
- груша
- вишня
- боярышник
- калина
- черноплодная рябина
Есть теплица для выращивая раннего урожая и открытый грунт.
О локации, инфраструктура:
В поселке находятся несколько продуктовых магазинов, пункты Озон и Вайлдбериз, прокат квадроциклов.
Есть местное такси Десяточка.
Остановка маршрутного автобуса (по расписанию до Барбошиной поляны) в 5 минутах, и также в 5 минутах остановка электропоезда.
Летом можно отдыхать на оборудованном пляже, пешком 10 минут, на автомобиле до Волги 20 минут (островок с видом на Ширяево). Шикарная природа вокруг, поля, лес, рыбалка, конный клуб, турбаза с бассейном, модный эко-отель Маяк с рестораном, лодочная станция.
Вело прогулки летом, лыжи зимой.
В зимний период проезд к дому регулярно чистит трактор, т.к. неподалёку колодец водоканала.
Одна остановка на автобусе, либо на машине чуть проехать и вы в посёлке Курумоч с большими магазинами Пятёрочка, Магнит, Магнит-косметик и точками продаж фермерских продуктов, ОZОN, Wb, хозяйственные товары, аптеки, банк, почта, поликлиника, рынок по средам, фитнес клуб и бассейн.
В школу детей возит специализированный автобус.
До аэропорта 15 минут.
Расположение дома очень удачное, вторая линия, безопасно выезжать на машине. Основная проезжая часть остается в стороне.
Продажа по причине переезда.
Подходит под ипотеку, полная сумма в договоре.
Реальному покупателю хороший торг после осмотра!
Пишите или звоните сейчас, чтобы завтра полноценно отдыхать и наслаждаться загородной атмосферой!
Ответственность агентства при осуществлении профессиональной деятельности риэлтора застрахована ОА АльфаСтрахование.