220 035 ₽/м²
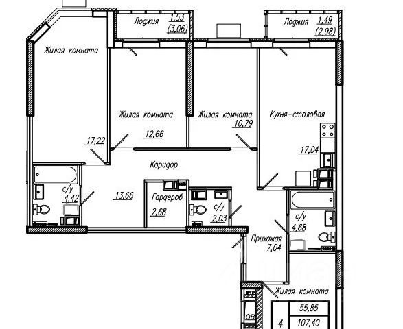
Номер объекта: 113862 Менеджер объекта: Бурков Василий Продается 2-х комнатная квартира в ЖК "И-ВОЛГА", строится в историческом центре города, недалеко от набережной реки Волги. -В ЖК предусмотрен двухуровневый подземный паркинг. -Количество квартир: всего 80. -Подъезд оборудован двумя лифтами:1 грузовой, 1 пассажирский. -Высококачественный фасад оснащён специальными корзинами для установки кондиционеров, имеется возможность выбора варианта остекления балконов и лоджий, а также предусмотрена декоративная подсветка фасадов, подчеркивающая красоту архитектуры. -Квартира имеет продуманную функциональную планировку. -Наличие большого количества естественного света благодаря размещению окон на две стороны. -В квартире предусмотрена одна лоджия. Заключается ДДУ по 214-ФЗ. Проектная декларация опубликована на сайте наш.дом.рф Квартиры в ипотеку в районе Ленинский в городе Самара.





















































































